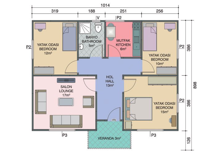
81 metre kare Anahtar Teslim

600 Bin TL  

Ürün Metrekare 78+3 M²
Elektrik Tesisatı Sıva Altı
Köşe Kaplama Tüm Köşeler için Estetik Betopan Köşe Kaplamaları
Pencereler Kurşunsuz PVC ERPEN
Sıhhi Tesisat Sıva Altı
Dış Cephe Betopan
Oda Sayısı 3+1
Bina Yüksekliği 2,50
Banyo Sayısı 1
İç Duvar 6 cm
Dış Duvar 10 cm
Çatı Kaplaması Boyalı Galveniz Sac, Metal Kiremit(Opsiyonel), Shi
Kat Sayısı 1
İç Kapı Amerikan Göbekli Kapı
Balkon Kapısı 1

 

Sözleşme tarihi itibariyle sözleşme bedelinin %50’ı nakit, geri kalan %50’lık kısmı ise evinizin sevkiyat günü tahsil edilir.
Zemin betonu ve her türlü hafriyat ve çevre düzenleme işleri, zemin ve duvar kaplamaları (şap, seramik, halı, fayans vb.) , prefabrik bina haricidir bağlantıların yapılması (elektrik, pissu, temiz su) , belediyeden alınması gereken müsaadeler ve ruhsat işleri, ısıtma ve soğutma tesisatları (kalorifer, klima vb.),
Prefabrik bina malzemeleri (Duvar panelleri, çelik birleşim elemanları, tavan kaplaması, tavan izolasyonu ve çatı kaplama malzemeleri), Dış kapısı çelik kapı, iç kapılar Amerikan göbekli kapı, Balkon kapıları PVC camlı kapı, Pencerelerin, Vasistasları ve Camların takılması, Binanın iç ve dış cephe boyasının yapılması, bina içerisindeki elektrik ve su tesisatlarının çekilmesi, elektrik malzemeleri dahildir.
Prefabrik konutlarda kullandığımız dış duvar kalınlığı 10 cm’dir. Duvar panelleri arasındaki 16 dansti yoğunluğundaki strafor, ve çatı izolasyonu için kullanılan taş yünü, normal betonarme binadan çok daha fazla ısı ve ses yalıtımı sağlamaktadır.
Prefabrik binalımızda kullanılan ana malzeme Betopan’dır. Üretici firma malzemeyi dış doğa şartlarına karşı 50 yıl garanti vermektedir. Bina taşıyıcı sistemi ve dış doğa ile irtibatlı bütün metal aksamı galvaniz yapılarak paslanması geciktirilir. Prefabrik binanın ortalama ömrü 30-40 yıl arasındadır.
Seçmiş olduğunuz binanın metrekaresi ve fabrika yoğunluğuna bağlı olmakla beraber ortalama 100 m2 tek katlı bir konut 5-7 iş günü içerisinde teslim edilir. Ortalama 4-5 içerisinde de montajı tamamlanır.
Prefabrik konutlar deprem konutları olarak ortaya çıktıkları unutulmamalıdır. Betonarme bir binaya göre çok daha hafif olması ve çelik vidalarla demonte parçaların birleştirilmesinden dolayı deprem anında esner fakat yıkılmaz.
İlginizi çekebilir
  • 81 metre kare Anahtar Teslim

    81 metre kare Anahtar Teslim

    600000
  • 53 metre kare Anahtar Teslim

    53 metre kare Anahtar Teslim

    445000
  • 150 metre kare Anahtar Teslim

    150 metre kare Anahtar Teslim

    1150000
  • 118 metre kare Anahtar Teslim

    118 metre kare Anahtar Teslim

    920000
  • 92 metre kare Anahtar Teslim

    92 metre kare Anahtar Teslim

    775000