₺985.000 TL
Tek Katlı Prefabrik Ev
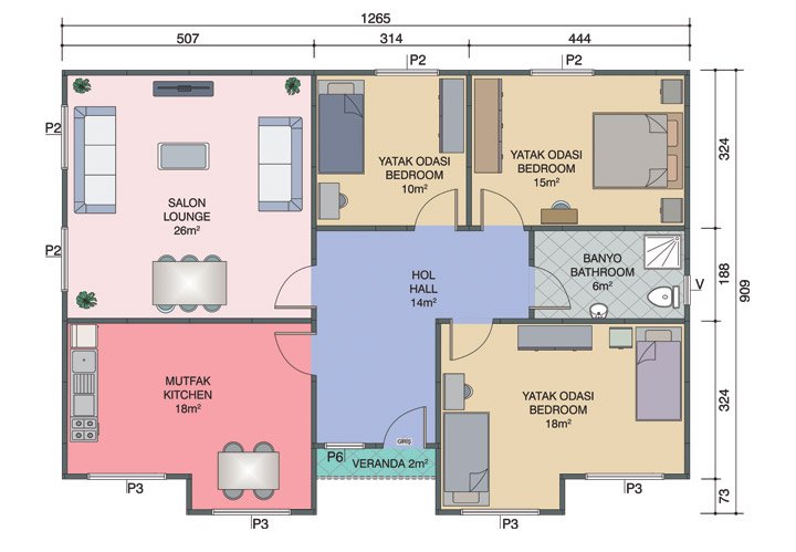
3+1 Tek Katlı Prefabrik Ev 112 m2
3+1 Tek Katlı Prefabrik Ev 112 m2. 112 metrekare kullanım alanına sahip bu model, anahtar teslim olarak sunulmaktadır.
Ev Bilgisi
Tip
Tek Katlı Prefabrik Ev
Ölçü
112 m²
Oda
3+1
Banyo
2
Kat
1
Fiyata Dahil Olanlar
Betopan dış cephe kaplama
Kurşunsuz PVC pencere
Amerikan tip topuzlu iç kapılar
Döşeme altı sıva altı elektrik tesisatı
Döşeme altı su tesisatı
Boyalı galvaniz saç çatı kaplama
Betopan köşe kaplamaları
Isı ve ses yalıtımı
Anahtar teslim montaj
Fiyata Dahil Olmayanlar
Zemin betonu ve hafriyat işlemleri
Zemin, mutfak dolabı şap işlemleri
Prefabrik konut harici dış bağlantılar
Gerekli yasal izinler ve işlemler
Isıtma ve soğutma tesisatları
Her türlü yalıtım işlemleri
Teknik Özellikler
| Dış Duvar Kalınlığı | 10 cm |
| İç Duvar Kalınlığı | 6 cm |
| Tavan Yüksekliği | 2.50 m |
| Dış Cephe | Betopan kaplama |
| Pencere Tipi | Kurşunsuz PVC |
| İç Kapılar | Amerikan tip topuzlu kapı |
| Elektrik Tesisatı | Döşeme altı sıva altı elektrik tesisatı |
| Su Tesisatı | Döşeme altı tesisat |
| Çatı Tipi | Boyalı galvaniz saç |
Satıcı Bilgisi
Telefon
+90 (532) 331 46 74
E-posta
info@sinprefabrikevfiyatlari.net
Hızlı İletişim
WhatsApp
+90 (532) 331 46 74